|
中能袁大滩矿业:设备“小”改造 提升“大”效能今年以来,中能袁大滩矿业机电队坚持把创新作为解决现场难题、提高工作效率的“金钥匙”,积极搭建技术创新平台,锻造创新精兵,让创新之花绽放在井下每个角落。
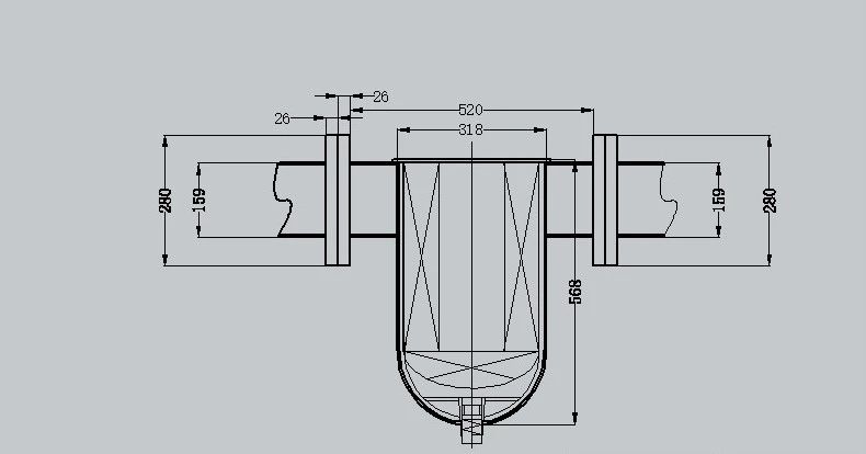
井下主压风系统正常运行中,由于管路生锈老化导致压风管中锈渣、水等固体杂质较多易造成井下各区队用风设备、压风主系统堵塞,为了更好的破解生产难题,该队自制出一款“净风卫士”,从源头过滤“风质”,改善井下各个工作面及其巷道内供风系统,延长涉风机电设备使用寿命。 传统的过滤器可以实现杂质的过滤,但清理滤芯附着的游离水时就费时费力。那么,一种免拆卸、自清理、操作方便的压风过滤装置成为该队的创新突破方向。 “我们以传统过滤器作为参考,不改变其工作原理,大胆创新,持续试验与改进,最终由过滤筒、滤芯、弹簧、弹性垫片、漏水装置组成了新款的压风过滤器。”该队党支部书记介绍到。
滤芯使用一段时间后就会因杂质过多堵塞,该装置通过加装空气滤芯和弹簧调节控制装置形成一个自动回路,实现压风管路游离水自动清理,可以有效拦截管路中铁锈、泥沙、颗粒物、悬浮物、水等杂质的同时,避免了频繁拆卸过滤器进行清洗,提升过滤器的使用寿命。该装置有效解决了管路初次接通后的风管管路内壁杂质清理问题和储存水的自动清理问题,从而保障矿井生产安全运行。 现该过滤装置已安装在综采工作面进顺、回顺压风管路进风口处和各用风设备的进风口处,保障了工作面各设备用风畅通,为矿井安全平稳生产护航。(刘随平)
|






